Croquis

perspectives

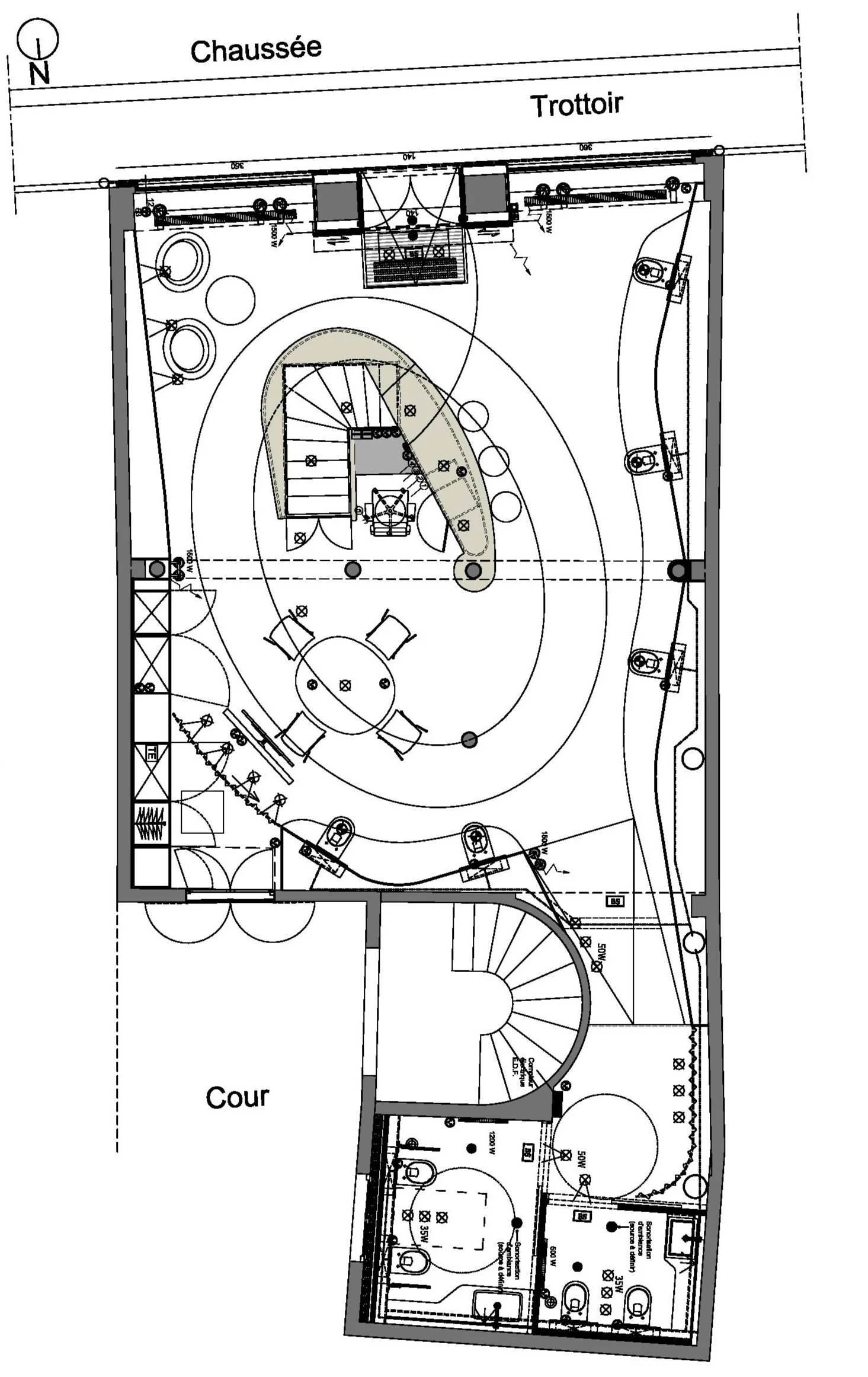
Plans

Modelisations

Précédent
Précédent

Design